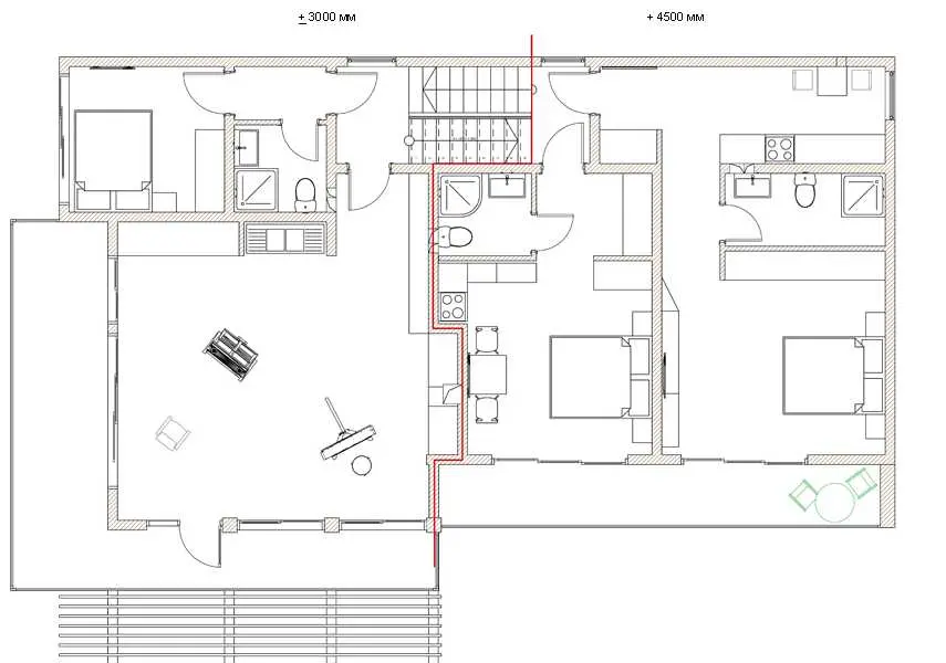
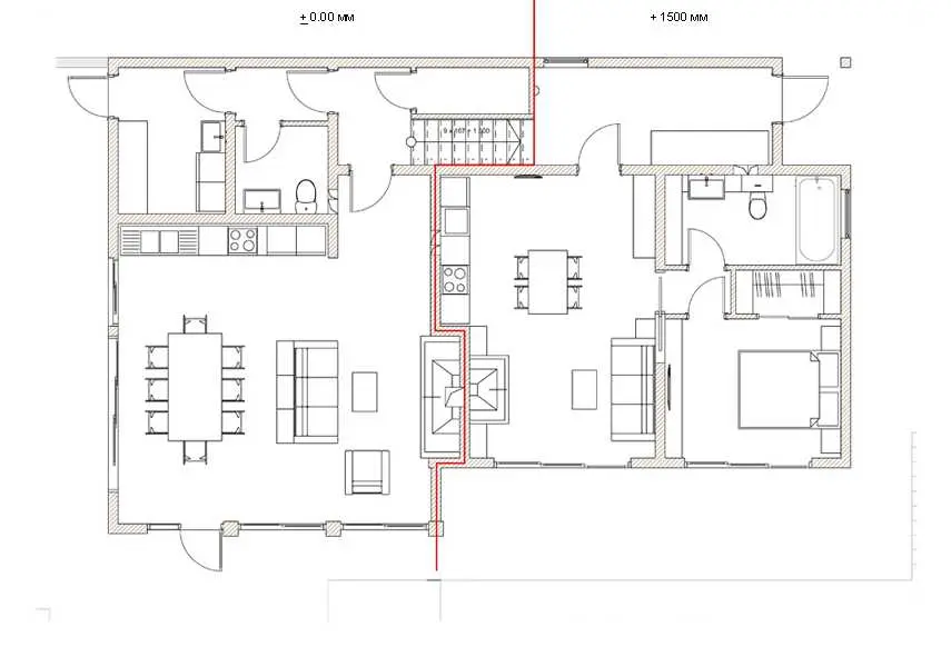
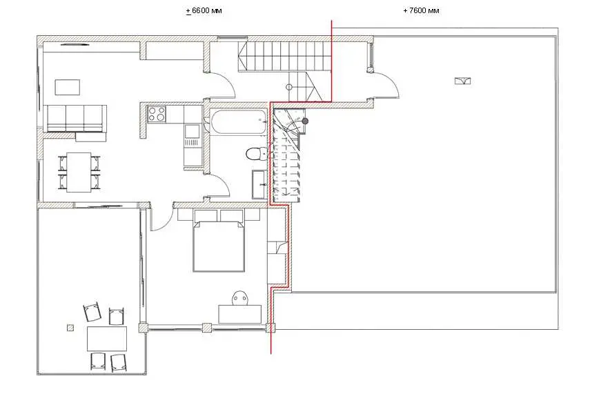
Проект дома в Черногории, дом с перепадом высот в 1,5 метра, с изолированными комнатами (для возможности сдачи в аренду каждой комнаты)
Изображения к проекту:
Общественная архитектура
Частные дома
Дизайн интерьеров
Макетная мастерская
Арт-галерея, роспись
Генплан и благоустройство
Малые архитектурные формы
Рассчитать стоимость Вашего проекта
Каждый Проект у нас, как и Заказчик - уникален, у нас нет единого шаблона по которому мы работаем. Цена формируется из пожеланий и потребностей клиента