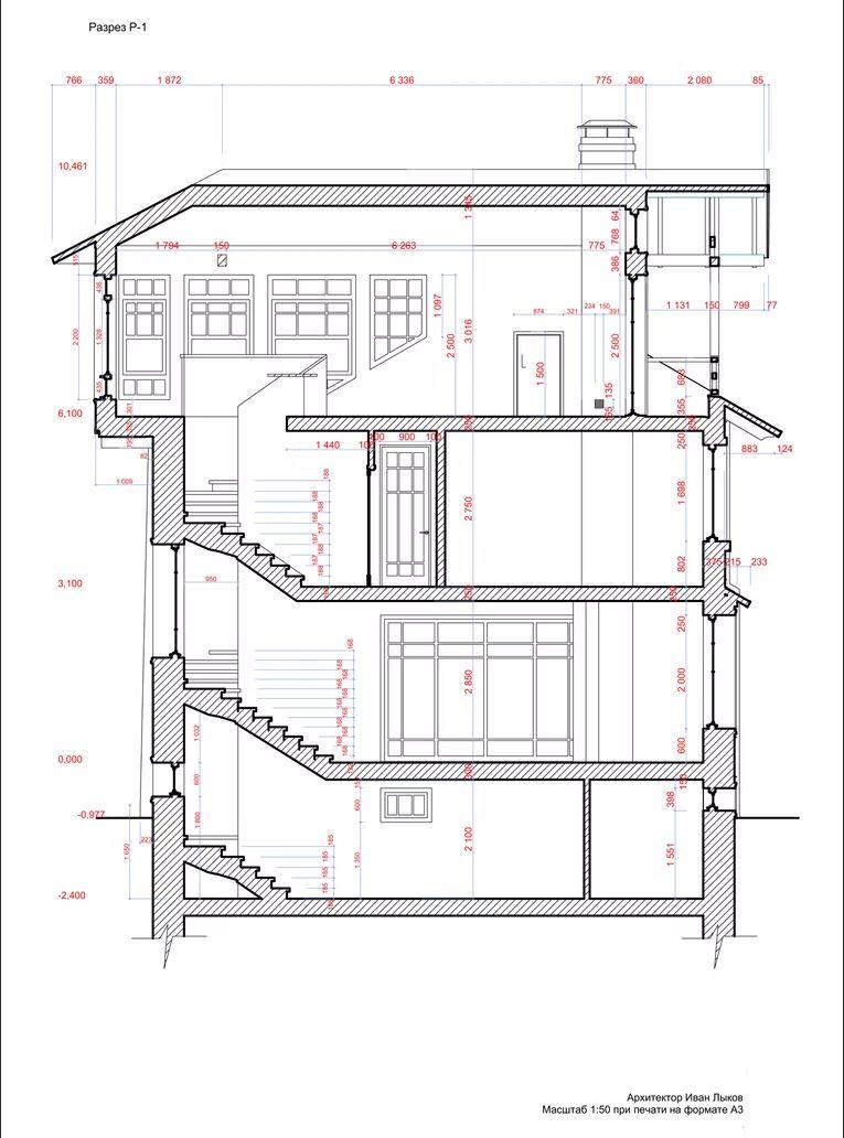
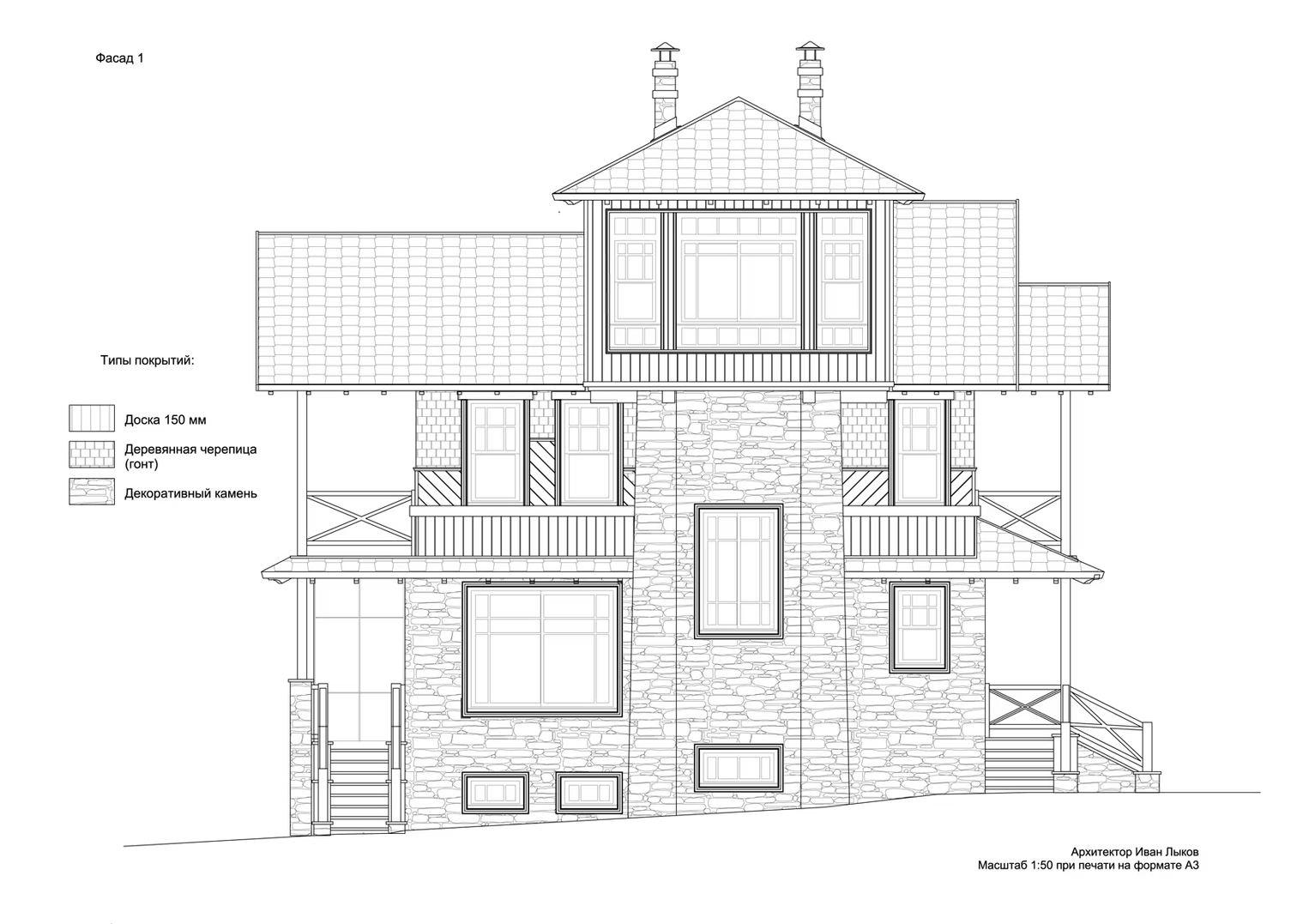
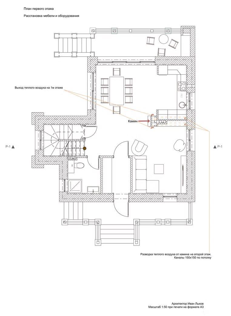
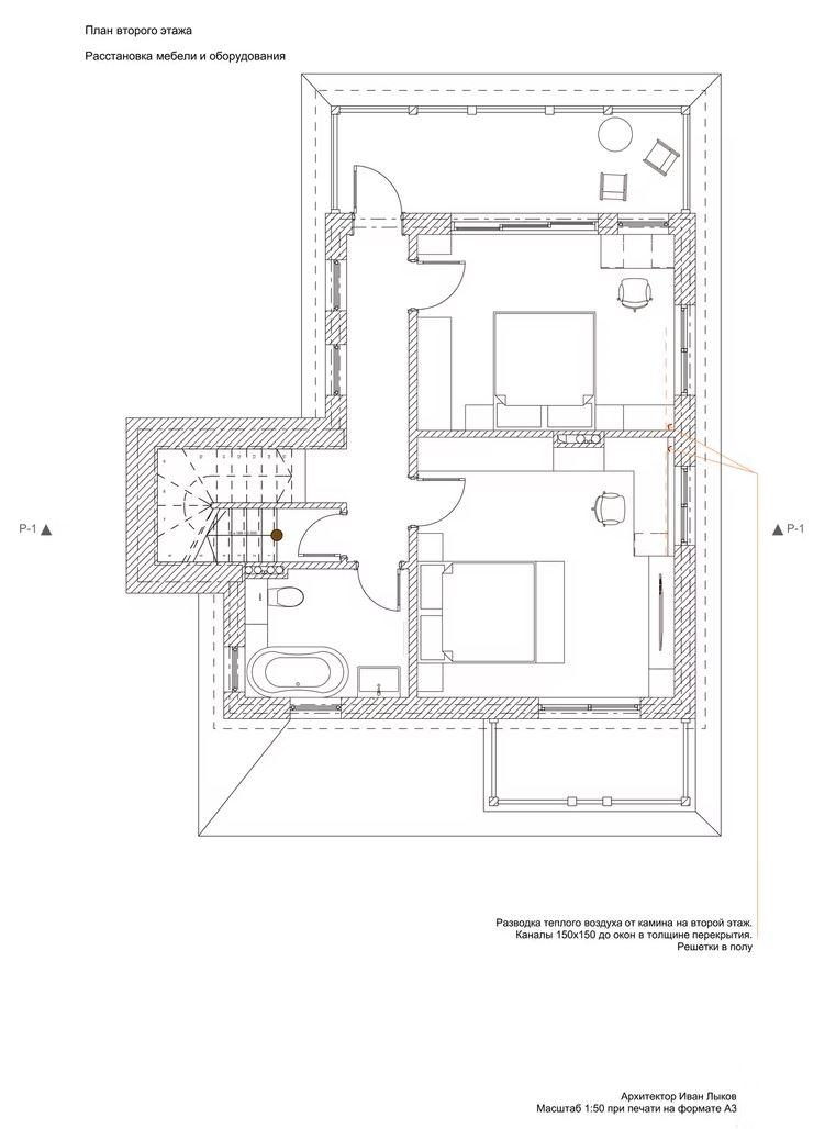
Проект частного дома с башней в московской области. Первый этаж - стены - газобетон Второй и третий этажи - деревянный каркас
Изображения к проекту:
Общественная архитектура
Частные дома
Дизайн интерьеров
Макетная мастерская
Арт-галерея, роспись
Генплан и благоустройство
Малые архитектурные формы
Рассчитать стоимость Вашего проекта
Каждый Проект у нас, как и Заказчик - уникален, у нас нет единого шаблона по которому мы работаем. Цена формируется из пожеланий и потребностей клиента