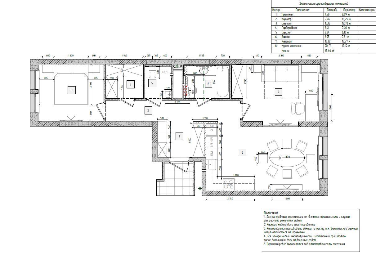
Квартира в Москве в нео-классическом стиле.
Каждый Проект у нас, как и Заказчик - уникален, у нас нет единого шаблона по которому мы работаем. Цена формируется из пожеланий и потребностей клиента
Мы обязательно свяжемся с Вами
LUCHTOWNdesign worldwide
Social arcitecture
Privatу houses
Interior design
Master plan and landscaping
small architectural forms
workshop of architectural models
Art gallery
©Luchtown