





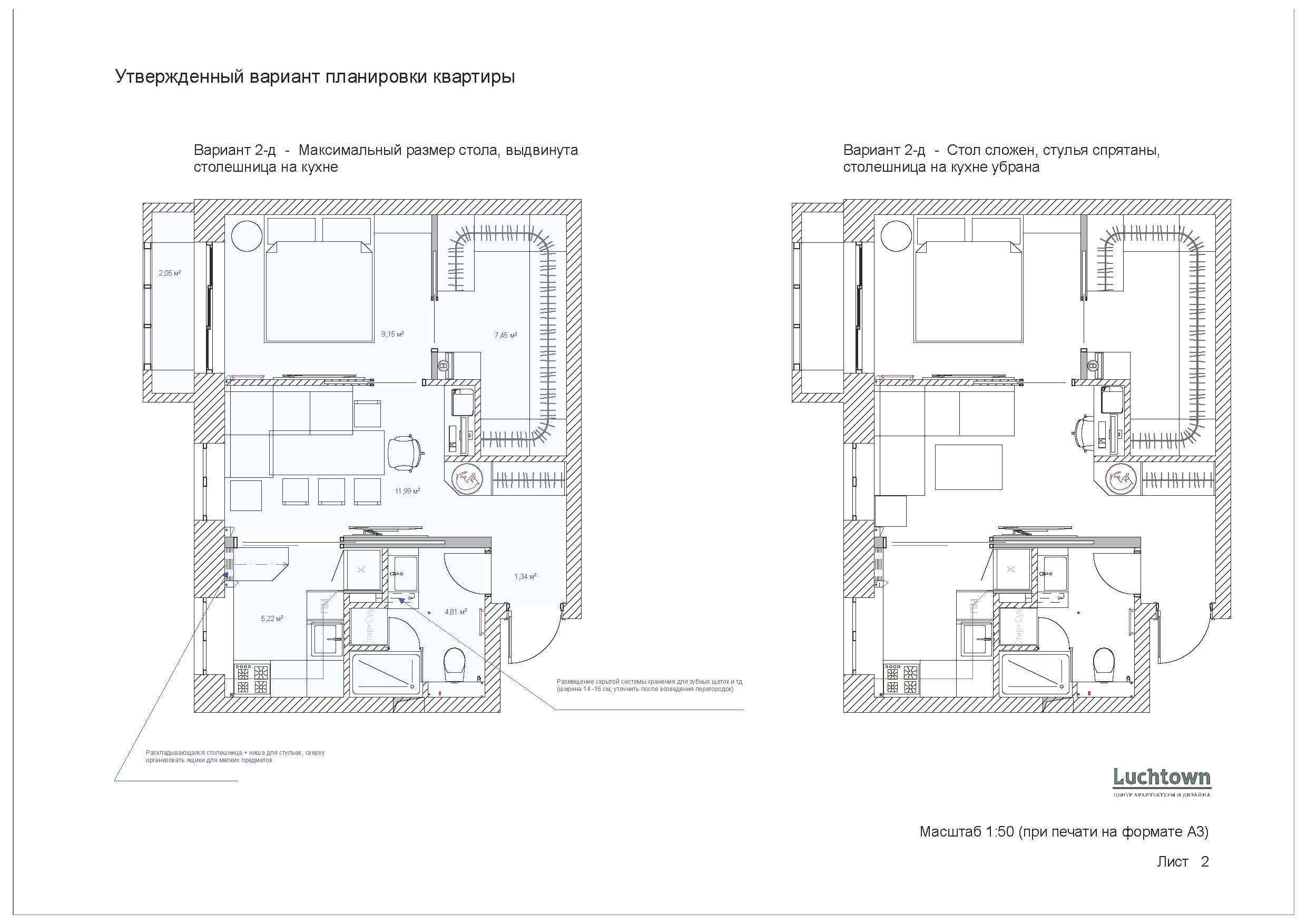
Дизайн интерьера небольшой квартиры для двух человек и четырех котиков. Интерьер с трансформируемым пространством, также в интерьер интегрирована система для полноценной жизни домашних питомцев.
























Каждый Проект у нас, как и Заказчик - уникален,
у нас нет единого шаблона по которому мы работаем.
Цена формируется из пожеланий и потребностей клиента
Мы обязательно свяжемся с Вами